Haus GWW

Projektname
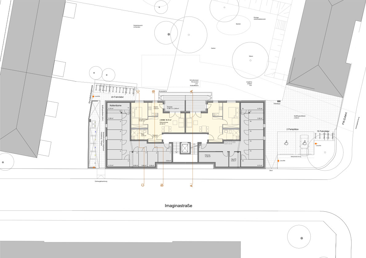
Neubau MFH Imaginastr. Wiesbaden

Beauftragung
LPH 1-8

Auftraggeber
GWW, Wiesbadener Wohnungsbaugesellschaft mbH

Daten
BGF 1800 m², BRI 5500 m³
Die GWW plant den Neubau eines Mehrfamilienhauses mit 18 Wohneinheiten als geförderten Wohnungsbau zur Vervollständigung der vorhandenen Blockbebauung.
Der Neubau orientiert sich in Maßstab, Fassade und Dachform an der als Ensemble denkmalgeschützten umgebenden Bebauung aus dem Beginn des 20. Jahrhunderts.
Massivbauweise, WDVS.

Fertigstellung
November 2015

weitere Projekte