Haus s

Projekt
Errichtung eines freistehenden Wohnhauses mit zwei Garagen in Schmitten/ Ts.

Beauftragung
LPH 1-9

Auftraggeber
privat

Daten
BGF 170 m², BRI 500 m³
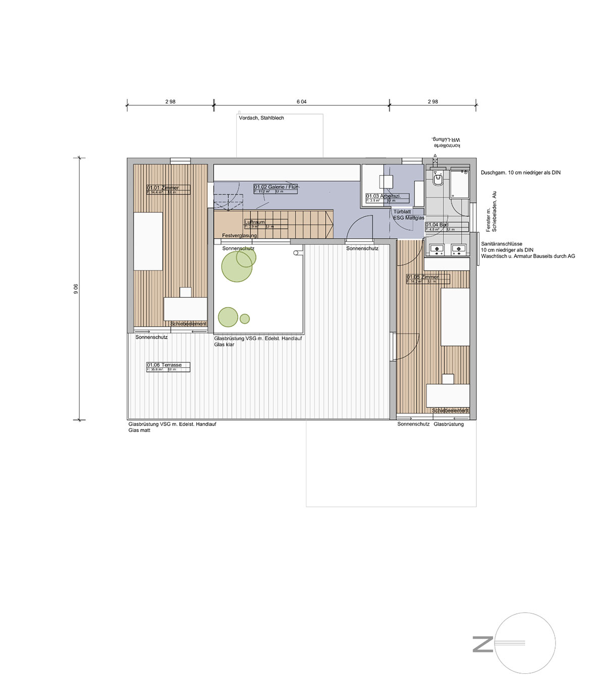
In Hunoldstal in der Gemeinde Schmitten ist die Errichtung eines freistehenden Einfamilienwohnhauses mit zwei Garagen geplant. Es ist ein zweigeschossiges Gebäude ohne Unterkellerung vorgesehen. Raumbildende und statische Elemente werden in Containerbauweise hergestellt. Die innere Gliederung erfolgt mit nichttragenden Leichtbauwänden.

Fertigstellung
2019

weitere Projekte