Thai Express Römerpassage Mainz

Projektname:Umbau und Entwicklung eines neues systemgastronomischen Grundkonzepts für das Schnellrestaurant Thai Express Römerpassage Mainz

Beauftragung: Raumbildender Ausbau LPH 1-8

Auftraggeber: Authentic Thai GmbH

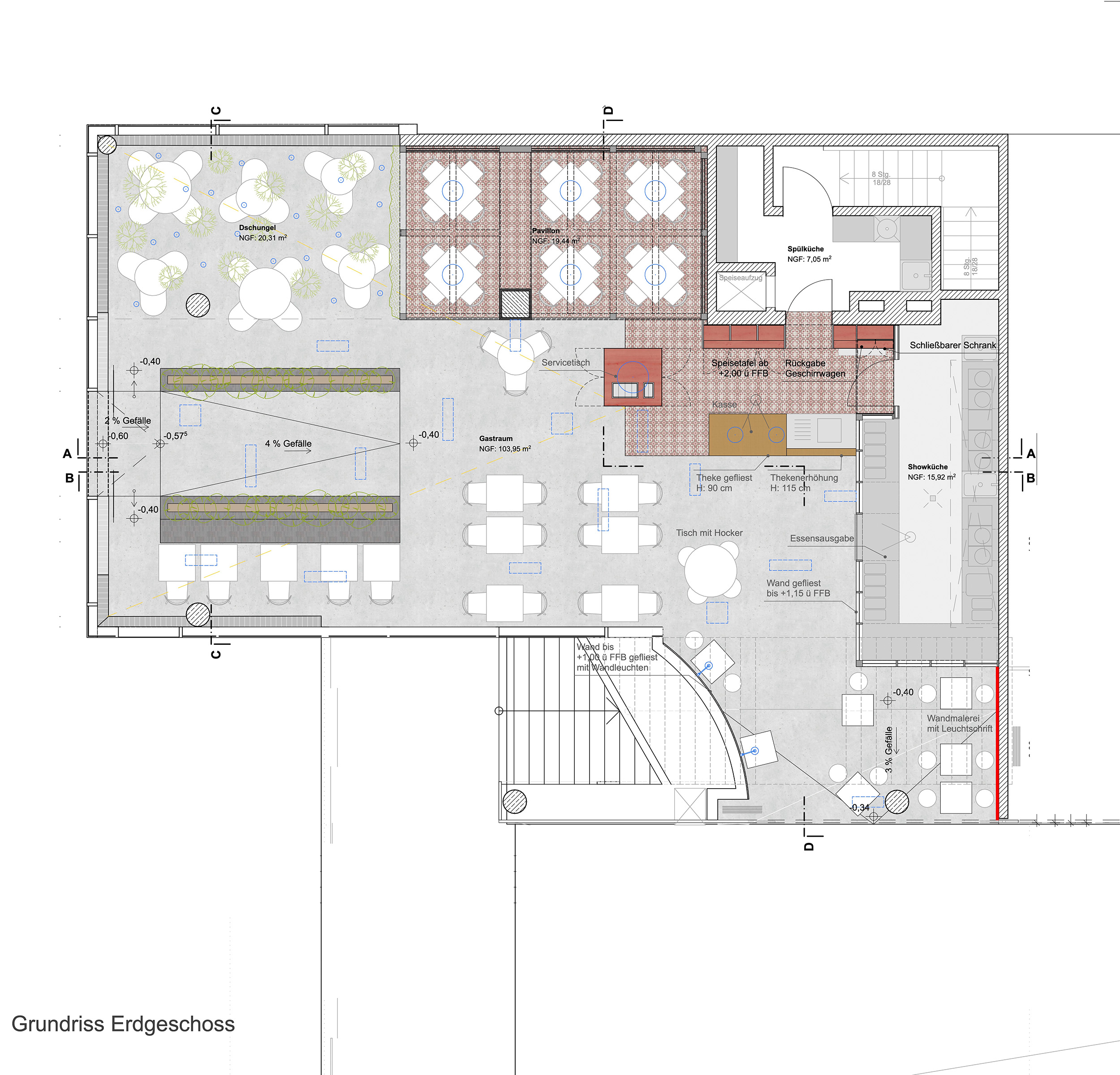
Daten: NGF 160 m², BRI 660 m³

Erläuterung:
Das Restaurant liegt direkt an der Hauptfußgängerachse der Römerpassage und nimmt seine Gäste mit auf eine Entdeckungsreise durch verschiedene „Stationen“ Street-Kitchen, Kantinentafel, Pavillon, Streetbestuhlungen entlang der Gasse und Gartenpatio wie kleine Haltepunkte einer urbanen Promenade.Ein zweigeschossiger Luftraum bringt den Dschungel Thailands ins Innere. Dicht begrünte Girlanden stürzen von der acht Meter hohen Decke herab und schaffen das Gefühl eines üppigen, lebendigen Innenraums. Durch die Gartenmöbel entsteht zudem ein fließender Übergang zwischen Innen- und Außenraum. Materialien und Farben erzeugen Atmosphäre. Das tiefrot gebeizte Kiefernholz bildet warme Nischen, handglasierte ockerfarbene Fliesen fassen die offene Theke und Kochtheke, während Terrazzo-Estrich und ornamentale Zementkacheln Bewegungs- und Aufenthaltszonen klar definieren. Das goldene Handwaschbecken mitten im Raum laden zum Händewaschen ein und verstärken zugleich den Charakter der urbanen Gasse.Am Abend taucht die abwechslungsreiche Beleuchtung, unterstützt durch Leuchtkästen, Leuchtschriften und grafische Thai-Ikonografie, das Restaurant in eine stimmungsvolle Atmosphäre, die an die lebendigen Straßen und Gassen Thailands erinnert. So wird Thai Express’ Credo – Verwurzelung in der Tradition bei gleichzeitiger Lust auf Neues. Jeder Besuch wird zu einer kleinen Reise durch die pulsierenden Straßenmärkte und die tropische Atmosphäre Thailands.

Fertigstellung:März 2025

weitere Projekte