WBW St. Gallen Oberer Graben

Projektname
WBW Verwaltungszentrum Oberer Graben, St. Gallen

Auslober
Kanton St. Gallen, November 2002

Erläuterung
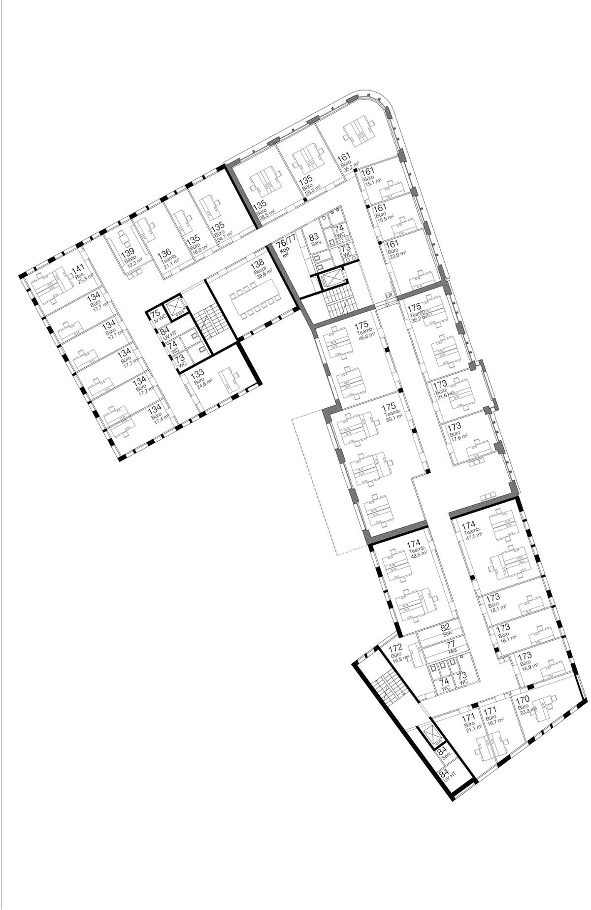
Das Justiz- und Polizeidepartement und das Gesundheitsdepartement des Kantons St. Gallen sollen einem Verwaltungszentrum einen zentralen Standort erhalten.
Dafür sollen die Gebäude Oberer Graben 32/36 durch zwei Kopfbauten am Oberen Graben 38 sowie an der Frongartenstraße ergänzt werden.
Die große Eingangshalle ist Verbindungselement zwischen Neubau und Altbau.
Für ein optimales Energiekonzept werden unter anderem hochwertige Wärmeschutzverglasungen mit außenliegendem Sonnenschutz und innenliegendem Blendschutz, ein thermoaktives Bauteilsystem, Wärmepumpe und Photovoltaikanlagen verwendet.

weitere Projekte