WBW IGS Brüder-Grimm-Schule Gießen

Projektname: Realisierungswettbewerb Neubau der Grundschule mit Förderstufe IGS Brüder-Grimm-Schule Gießen
Nicht offener hochbaulicher und freiraumplanerischer Realisierungswettbewerb

Beauftragung: Universitätsstadt Gießen

Erläuterung
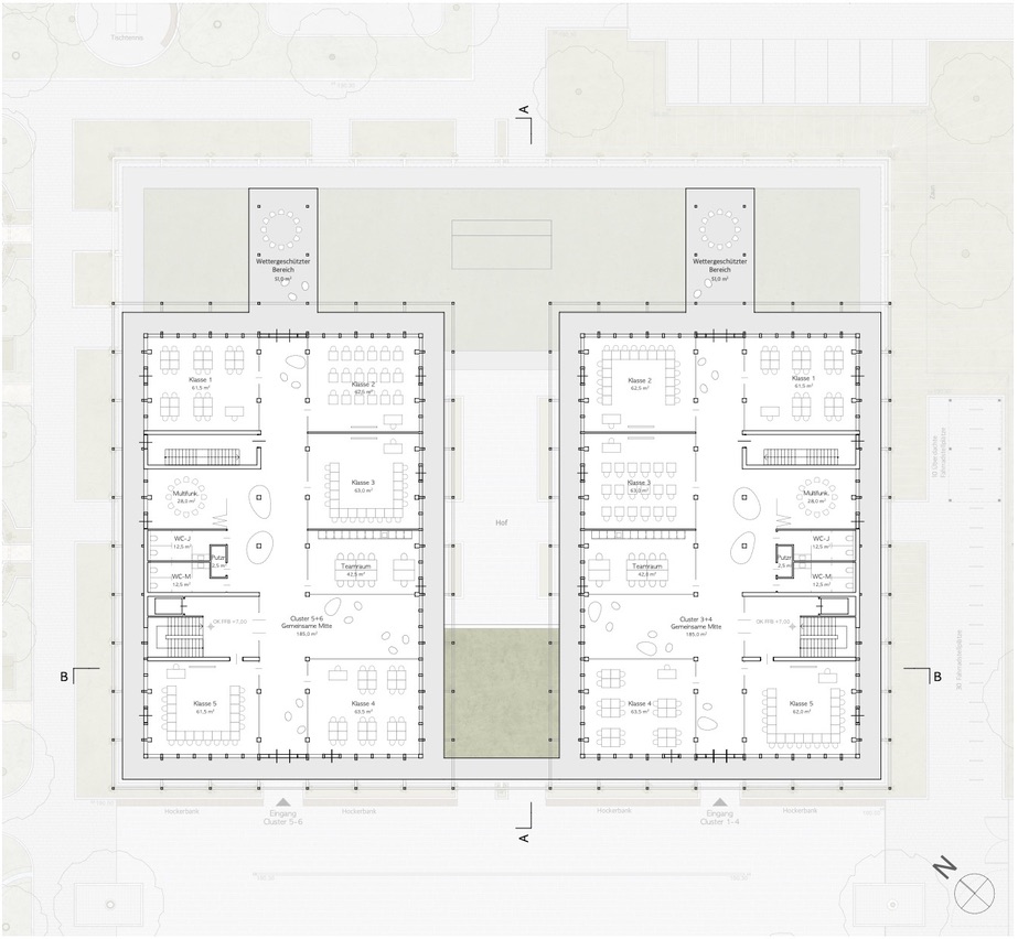
Der kompakte, ressourcenschonende Neubau der Grundschule mit Förderstufe gliedert sich in einen klar strukturierten Sockel mit gemeinschaftlichen Funktionen sowie zwei darauf aufliegenden Clustergeschossen mit umlaufenden Laubengängen, die vielfältige Funktionen wie Sonnenschutz, Erschließung und grüne Unterrichtsbereiche vereinen. Die pädagogische Qualität zeigt sich in der konsequenten Clusterbildung mit lichtdurchfluteten Lernlandschaften, einer kommunikativen Mitte und direkten Freibereichen für jede Jahrgangsstufe. Städtebaulich orientiert sich der Baukörper an der bestehenden Struktur und schafft durch den offenen Innenhof eine qualitätsvolle Verbindung zum Bestand. Das Freiraumkonzept bietet neben einem großzügigen, gestuften Schulhof auch naturnahe Lernorte, grüne Klassenzimmer und vielfältige Bewegungsangebote, eingebettet in ein ökologisch wirksames Entwässerungssystem. Die konsequente Verwendung von Holz, passive Klimastrategien und die integrative Gebäudetechnik verbinden Nachhaltigkeit mit hohem Nutzerkomfort. Durch serielle Vorfertigung, ein wirtschaftliches Raster und reduzierte Haustechnik wird auch langfristig eine hohe Wirtschaftlichkeit im Bau und Betrieb gewährleistet.

weitere Projekte