WBW Zukunftszentrum für Deutsche Einheit und Europäische Transformation

Projektname: Offener zweiphasiger interdisziplinärer Planungswettbewerb
Zukunftszentrum für Deutsche Einheit und Europäische Transformation in Halle

Beauftragung: Bundesrepublik Deutschland vertreten durch das Ministerium für wohnen, Stadtentwicklung und Bauwesen (BMWSB)

Erläuterung
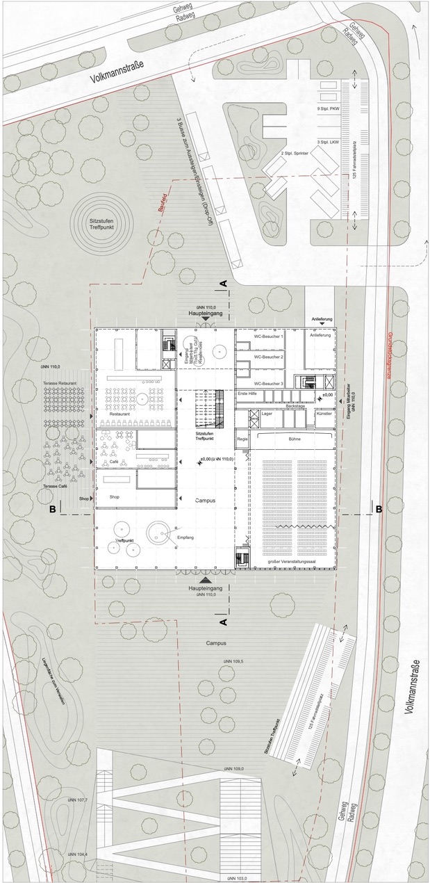
Der Neubau des Zukunftszentrums setzt mit einem 43 m hohen, monolithischen Kubus ein markantes städtebauliches Zeichen am Riebeckplatz und transformiert eine von Verkehrsbauten und Brüchen geprägte urbane Insel in einen offenen, identitätsstiftenden Parkraum. Die gleichwertig erschlossenen Gebäudeseiten ermöglichen eine demokratische Zugangskultur, während das zentrale Atrium als vertikaler Campus alle Geschosse räumlich und funktional verknüpft. Die Raumorganisation folgt einem offenen, flexiblen Konzept mit Ausstellungsflächen, Veranstaltungsbereichen, einem öffentlich zugänglichen Restaurant sowie wissenschaftlichen und pädagogischen Einrichtungen, die durch Atrien, Rampen und Sichtbeziehungen vernetzt sind. Der Bau nutzt eine CO₂-reduzierte Holz-Hybrid-Konstruktion mit Sichtbezug zu Transformation, Nachhaltigkeit und Zukunft. Ein Lowtech-Klima- und Lüftungskonzept mit natürlicher Belichtung, Nachtauskühlung und PV-bestücktem Holzlamellen-Sonnenschutz minimiert den Energiebedarf. Die Freiraumgestaltung setzt auf extensive Begrünung, Versickerung, Regenwassernutzung und die Integration in die Topografie, wodurch ein ökologisch wirksamer, offener Stadtraum entsteht. So wird der Ort selbst zur gebauten Metapher für Wandel, Verbindung und zukunftsgerichtetes Denken.

weitere Projekte